Carte des biens immobiliers
Bouton du menu de navigation

CHARTRES (28) - VENTE LOCAL COMMERCIAL

Agent Immobilier: Gabriel JORDA

email: gabriel@courcier-immobilier.fr

téléphone: +33695766951


Vente

1 434 069 EUR

298 m²

Icone type de bien

DESCRIPTION DU BIEN

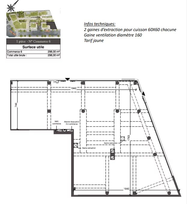
Situé à Chartres, au sein de la résidence Le Parvis des Lumières, ce spacieux local commercial de 298 m² bénéficie d’un emplacement stratégique au cœur d’un programme neuf comprenant 70 logements, 99 chambres d’hôtel, 2 000 m² de bureaux, ainsi que des commerces déjà occupés par une maison médicale et un cabinet dentaire. Le local, implanté en rez-de-chaussée, bénéficie d’une large façade, garantissant une excellente visibilité auprès du flux piétonnier et des usagers du quartier. Grâce à sa configuration et à son positionnement, il constitue un emplacement idéal pour une enseigne souhaitant s’implanter durablement dans un secteur en plein essor. Particulièrement adapté aux activités de restauration ou aux métiers de bouche, il est déjà équipé de deux gaines d’extraction pour cuisson (60 × 60) ainsi que d’une gaine de ventilation de 160 de diamètre, permettant une installation technique facilitée et conforme aux exigences de ce type d’activités. La livraison est prévue pour le 2ᵉ trimestre 2026.


INFORMATIONS COMPLÉMENTAIRES

Surface :

298m²

Prix :

1 434 069 EUR

Prix m²

4812 €/m²

Type actif

Commerce

VISITE 3D

média indisponible

Bouton affichant un formulaire de contact
Bouton affichant plusieurs actualités

Contactez-nous ici !

Nom

Société

Téléphone

Email

Message